Capannone in affitto

Villongo, Via Alessandro Manzoni
€ 4.000 / mese
1 locale 1 locale
940 Mq 940 Mq
4 bagni 4 bagni

Capannone in affitto

Villongo, Via Alessandro Manzoni

Questo immobile dispone di soluzioni frazionate

Descrizione annuncio

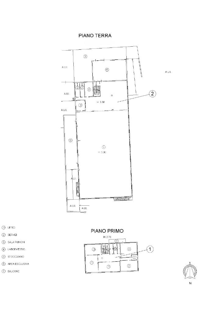
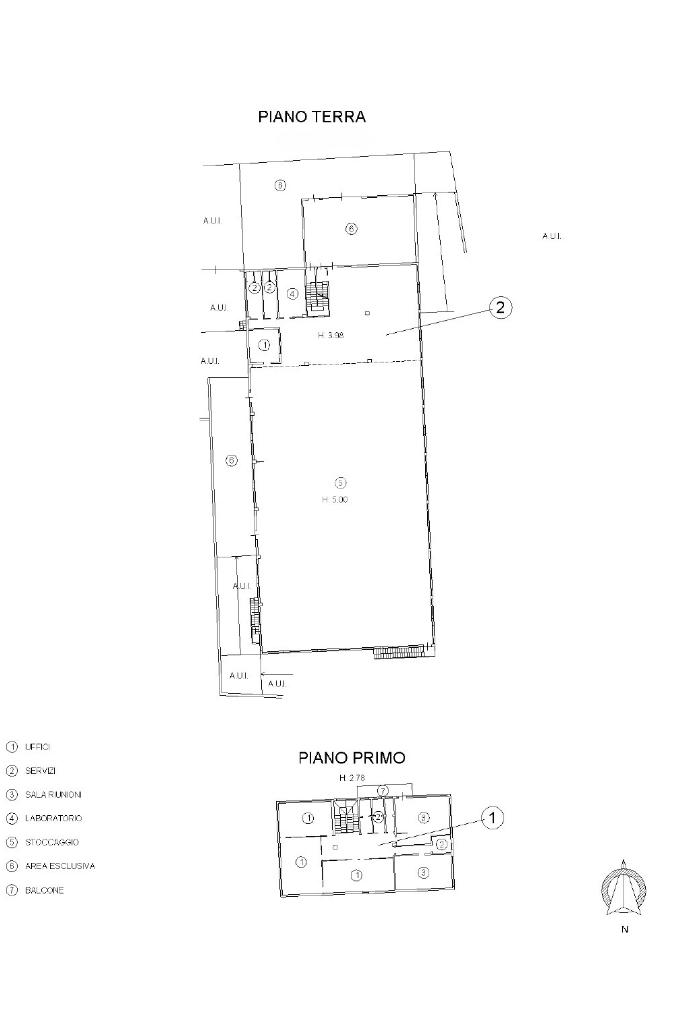
VILLONGO: Proponiamo in locazione capannone di ca. 940mq cosi disposti:

Al piano terra troviamo 660mq ca di capannone con 5m d' altezza sotto trave, un ufficio di ca. 10mq, doppi servizi igienici e spogliatoi.

Al piano primo raggiungibile tramite scale interne vi sono 250mq ca. di uffici separati fra loro con pareti movibili che permettono la personalizzazione degli spazi; presenti anche 3 servizi igienici.

Completa la struttura un piazzale esterno privato sul fronte di ca. 300mq e un doppio accesso per mezzi.

Mostra tutto

Nelle vicinanze

Trasporto pubblico Trasporto pubblico
Paratico-Sarnico
Paratico-Sarnico
2,5 Km
Capriolo
Capriolo
2,6 Km
Sarnico
2,9 Km
Ricariche auto elettriche Ricariche auto elettriche
EnelX EVA+ Conad Capriolo
2,7 Km
Scuole Scuole
Scuole
2,1 Km
Accademia
2,6 Km
Scuola Secondaria di Primo Grado Giacomo Matteotti
2,9 Km
Farmacia Farmacia
Farmacia Sant'Anna
720 m
Farmacia Perani
2,6 Km
Ospedali Ospedali
Ospedale di Sarnico
2,4 Km
Supermercati Supermercati
Simply
2,2 Km
MD
2,5 Km
Despar
2,7 Km
Conad
2,7 Km
Supermercati
2,8 Km
Bar Bar
Bar Corallo
1,1 Km
Bar Isolabella
1,3 Km
Bar
1,5 Km
Fuori orario
2,5 Km
Araba Fenice
2,6 Km
Ristoranti Ristoranti
Agriturismo Cascina Oglio
1,4 Km
Ristoranti
1,6 Km
La Canva
2,1 Km
L'Amalfitana S.R.L.
2,5 Km
Dinner at Number 24
2,5 Km
Mostra tutto

Caratteristiche

Rif.:
61192953
Piano:
1 di 1
Posti auto:
5
Condizionamento:
Assente
Ascensore:
No
Riscaldamento:
Autonomo
Mostra tutto
Prezzo Prezzo
€ 4.000 / mese
Spese annue Spese annue
€ 0

Classe Energetica

G
G
G
G
G
G
G
G
G
Anno di costruzione:
2000
Riscaldamento:
Autonomo
Tipo impianto:
Ad aria
Tipo alimentazione:
Aria

Ti interessa visionare l'immobile?

Fissa un appuntamento  Fissa un appuntamento

Richiedi informazioni

Clicca su Leggi per aprire l'informativa
* Questi campi sono obbligatori
Affiliato
Immobiliare Sarnico Srl
Viale Papa Giovanni XXIII, 1/C 24060 Bolgare (BG)

Il nostro staff


  • Paolo Plebani
    Affiliato

  • Jesus Massimo Bergamaschi
    Affiliato

  • Andrea Loda
    Responsabile

  • Cristian Allegrini
    Collaboratore

  • Laura Poma
    Coordinatrice

  • Marco Previtali
    Collaboratore

  • Alessandro Valtulini
    Collaboratore
Viale Papa Giovanni XXIII, 1/C 24060 Bolgare (BG)
Zona: Lago D'Iseo-Castelli Calepio-Brusaporto-Chiuduno-Trescore
Mostra su mappa
Orari: lunedi, martedi, mercoledi, giovedi e venerdi: 9.00/12.30-14.30/19.00 sabato: 9.00/12.30
Affiliato
Immobiliare Sarnico Srl
Viale Papa Giovanni XXIII, 1/C 24060 Bolgare (BG)

2026 Tecnocasa Franchising S.p.A. - P. IVA 08365160152 - Via Monte Bianco 60/A 20089 Rozzano (MI). Ogni agenzia ha un proprio titolare ed è autonoma. Privacy policy | Policy utilizzo | Cookie policy